Church Street, Eckington

Asking Price £275,000

2 Bedroom Semi-Detached House For Sale in Church Street, Eckington

2 2 1

**A CHARMING GRADE II LISTED COTTAGE WITH EXTENSIVE WESTERLY FACING REAR GARDEN** Offered for sale with no onward chain. Kitchen with pantry; lounge with feature log burner; separate dining room; two bedrooms with storage cupboards; bathroom with free standing roll top bath and feature vanity unit. The generous Westerly facing rear garden has a patio seating area; lawn with mature planting; pond; raised vegetable planters; summer house and various out buildings. This property requires updating. Eckington is an attractive and vibrant village with a community feel with a full and varied schedule of annual events. The village shop is a short walk from the property which stocks local produce, there are also two public houses and the renowned Eckington Manor- with a master award winning chef. Popular and sought after village first school. Located on the edge of the Cotswolds, an area of outstanding natural beauty. The village of Eckington lies on the banks of the River Avon, and it is located 4 miles from the market town of Pershore and 6 miles to Tewksbury

Front

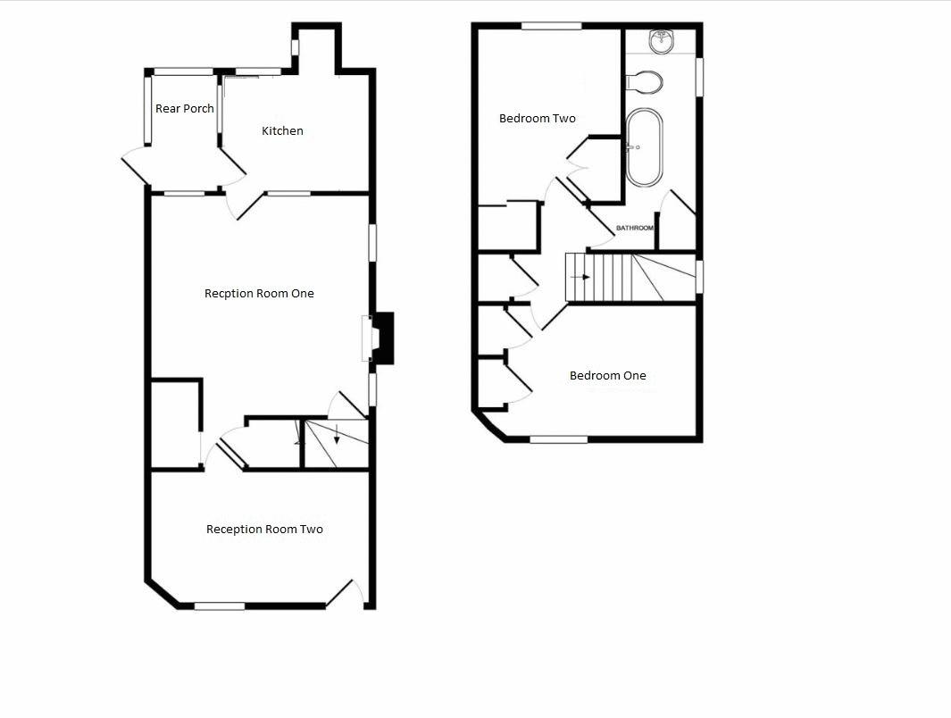
Feature wooden door to the first reception room.

Reception Room One
14' 9'' x 9' 3'' (4.49m x 2.82m) Max
Glazed window to the front aspect. Feature beams; pendant light fitting; door to reception room two.

Reception Room Two
14' 2'' x 13' 9'' (4.31m x 4.19m) Max
Two glazed windows to the side aspect. Feature log burning stove with wooden mantle; beams and wooden flooring. Door to the storage cupboard; under stairs cupboard and stairs rising to the first floor; door to the kitchen. Wall lights; radiator.

Kitchen
11' 5'' x 10' 1'' (3.48m x 3.07m) Max
Triple aspect glazing to sides and rear aspect. Base units with stainless steel sink and drainer with mixer tap, space for an under counter fridge; open to the pantry store. Stable wooden door to the rear porch; quarry tiled flooring.

Landing

Glazing to the side aspect. Feature beams; doors to the bedrooms, bathroom and storage cupboards with shelving; access to the loft.

Bedroom One
13' 4'' x 9' 3'' (4.06m x 2.82m) Max
Glazing to the front aspect. Two storage cupboards; feature beams; pendant light fitting; radiator; wooden flooring.

Bedroom Two
11' 2'' x 9' 8'' (3.40m x 2.94m) Max
Glazing to the rear aspect. Storage cupboards with hanging rail; feature beams; pendant light fitting; radiator.

Bathroom
13' 6'' x 4' 2'' (4.11m x 1.27m) Max
Glazing to the side aspect. Free standing roll-top bath with mixer tap and mains fed mixer shower over. Feature vanity sink with mixer tap and tiled splash back; low level w.c. Shaver point. Storage cupboard housing the 'Vaillant' combi boiler. Pendant light fitting; radiator with towel rail; part tiled walls; wooden flooring.

Rear Porch

Glazing to the side and rear aspect; stable door to the kitchen; wooden door to the garden.

Westerly Facing Rear Garden

Patio seating area with extensive lawn with mature planted borders; pond; raised vegetable patches; various outbuildings, shed and summer house.

Tenure: Freehold

Council Tax Band: C

Broadband and Mobile Information

To check broadband speeds and mobile coverage for this property please visit: https://www.ofcom.org.uk/phones-telecoms-and-internet/advice-for-consumers/advice/ofcom-checker and enter postcode WR10 3AN

Identity Checks

Estate Agents are required by law to conduct anti-money laundering checks on all those buying a property. We have partnered with a third part supplier to undertake these to ensure checks are HMRC compliant. The cost of these checks is £60 including VAT and is non-refundable. The charge covers the cost of obtaining relevant data, any manual checks and monitoring which may be required. This fee will need to be paid, and checks completed in advance of the issuing of a memorandum of sale.

Disclaimer

All measurements are approximate and for general guidance only. Whilst every attempt has been made to ensure accuracy, they must not be relied on.

The fixtures, fittings and appliances referred to have not been tested and therefore no guarantee can be given and that they are in working order.

Internal photographs are reproduced for general information and it must not be inferred that any item shown is included with the property.

Whilst we carry out due diligence before launching a property to the market and endeavour to provide accurate information, buyers are advised to conduct their own due diligence.

Our information is presented to the best of our knowledge and should not solely be relied upon when making purchasing decisions. The responsibility for verifying aspects such as flood risk, easements, covenants and other property related details rests with the buyer.

Important Information

  • This is a Freehold property.

Property Features

  • A charming grade II Listed black and white cottage
  • Character throughout the property
  • Lounge with log burning stove
  • Kitchen with pantry and separate dining room
  • Two good sized bedrooms with feature beams
  • Bathroom with freestanding roll top bath and vanity sink
  • Patio seating area and extensive lawn, pond and outhouses
  • Offered for sale with no onward chain
  • This property requires updating
  • Central village location with amenities

floorplan

epc

Throckmorton Road, Pershore

£275,000

3 Bedroom Semi-Detached House

More details...

Cherry Orchard, Pershore

£275,000

2 Bedroom Semi-Detached House

More details...

Westcott Way, Pershore

£275,000

3 Bedroom Semi-Detached House

More details...

Chestnut Close, Drakes Brought...

£285,000

3 Bedroom Semi-Detached House

More details...

High Street, Pershore

£285,000

3 Bedroom Semi-Detached House

More details...

Upper Street, Defford

£290,000

2 Bedroom Semi-Detached Bungalow

More details...

Ref: 00004357

Nigel Poole & Partners

23 High Street
Pershore
Worcestershire
WR10 1AA
United Kingdom

T: 01386 556506
E: tania.port@nigelpooleestateagents.co.uk

Update Cookies Preferences