SSTC
Broadgrove Nursery Farm Shop, Eckington Road, Birlingham

Offers in region of £600,000

Not Specified For Sale in Broadgrove Nursery Farm Shop, Eckington Road, Birlingham

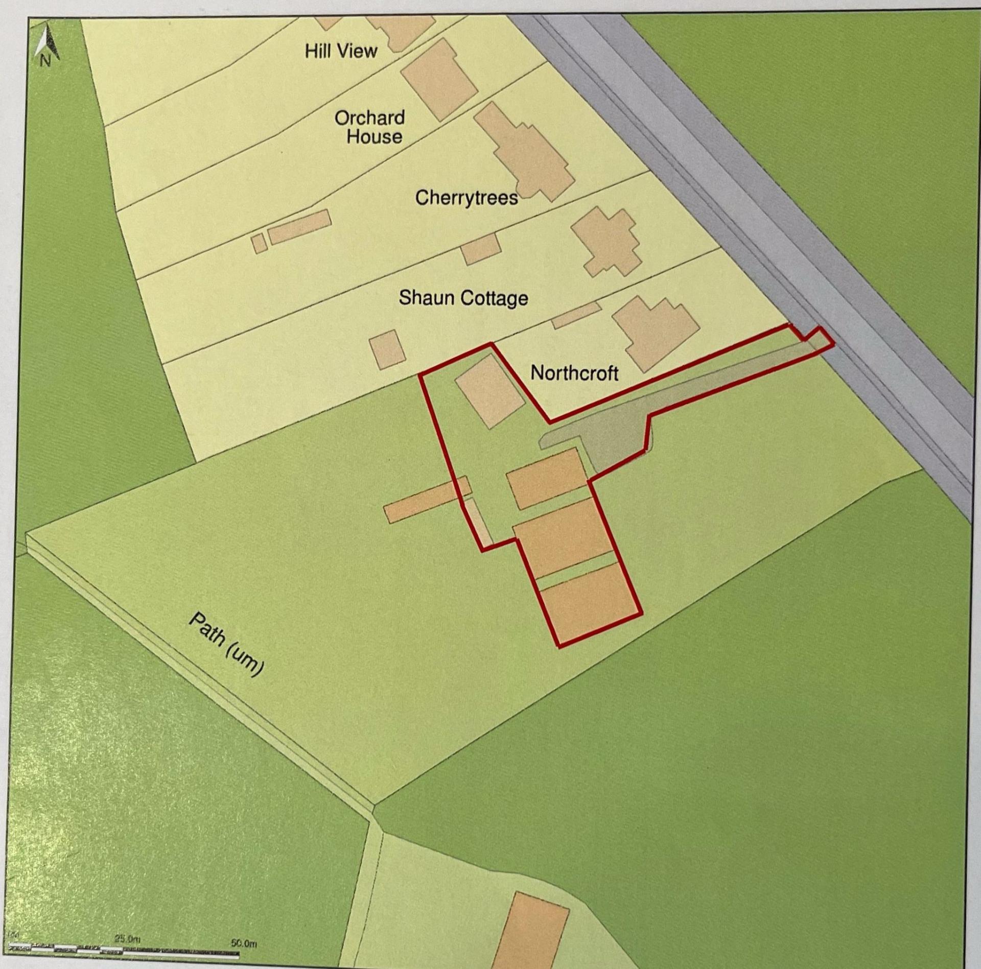
**A REDEVELOPMENT SITE WITH BOTH RESIDENTIAL AND COMMERCIAL OPPORTUNITIES** Commercial consent granted for 7-units on part of the site - balance is available for further development. Residential approval in principle for 4 units on part of the site - rest also being available.

Light Industrial Units

1 & 2 – 100 sq.m
3 – 75 sq. m
4- 150 sq.m
5 & 6 – 125 sq.m
7 – 150 sq.m

Additional Information

The total site area is approx. 2-acres. As can be seen from the plans the industrial and residential areas being sold are different and both form part of the overall site. This is done to minimise an uplift payment to the council on any areas that have development consent.
The remainder of the site is available by way of a conditional contract or option on terms to be agreed.

Important Information

  • This is a Freehold property.

Property Features

  • Re-development site
  • Commercial consent W/23/00042/FUL (7 light industrial units)
  • Approval in principle - residential W/23/02328
  • Semi-rural location
  • Easy access M5 and facilities
  • Option/conditional contract considered

Sorry! There are no available floor plans for this property.
Sorry! An EPC is not available for this property.

Manor Road, Eckington

£600,000

2 Bedroom Cottage

More details...

Box Tree Close, Defford

£585,000

3 Bedroom Detached Bungalow

More details...

Stonebow Road, Drakes Broughto...

£580,000

3 Bedroom Detached House

More details...

Hunter Rise, Pershore

£625,000

4 Bedroom Detached House

More details...

Woodbury Park, Norton

£665,000

4 Bedroom Detached House

More details...

Williamson Way, Drakes Brought...

£795,000

4 Bedroom Detached House

More details...

Ref: EAXML9894_12606586

Nigel Poole & Partners

23 High Street
Pershore
Worcestershire
WR10 1AA
United Kingdom

T: 01386 556506
E: tania.port@nigelpooleestateagents.co.uk

Update Cookies Preferences