Under Offer
Owletts End, Pinvin

Asking Price £127,500

Not Specified For Sale in Owletts End, Pinvin

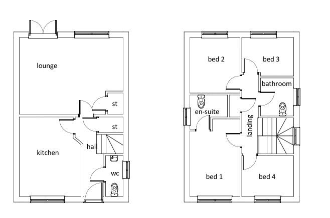
**BUILDING PLOT WITH PLANNING PERMISSION FOR A FOUR BEDROOM DETACHED HOUSE** Wychavon District Council Planning W/24/02443/FUL - subject to 106 agreement. Entrance hall; kitchen; lounge to the rear overlooking the garden; four bedrooms - master with ensuite; family bathroom and ground floor w.c. Drive with parking for several vehicles. The site has an area of 390msq; the total gross internal floor area of the four bedroom property is 110msq; the private rear amenity space will be 158msq; Quiet village location on outskirts of Pershore.

Identity Checks

Estate Agents are required by law to conduct anti-money laundering checks on all those buying a property. We have partnered with a third part supplier to undertake these to ensure checks are HMRC compliant. The cost of these checks is £60 including VAT and is non-refundable. The charge covers the cost of obtaining relevant data, any manual checks and monitoring which may be required. This fee will need to be paid, and checks completed in advance of the issuing of a memorandum of sale.

Disclaimer

All measurements are approximate and for general guidance only. Whilst every attempt has been made to ensure accuracy, they must not be relied on.

The fixtures, fittings and appliances referred to have not been tested and therefore no guarantee can be given and that they are in working order.

Internal photographs are reproduced for general information and it must not be inferred that any item shown is included with the property.

Whilst we carry out due diligence before launching a property to the market and endeavour to provide accurate information, buyers are advised to conduct their own due diligence.

Our information is presented to the best of our knowledge and should not solely be relied upon when making purchasing decisions. The responsibility for verifying aspects such as flood risk, easements, covenants and other property related details rests with the buyer.

Important Information

  • This is a Freehold property.

Property Features

  • Planning permission granted for a four bedroom detached house
  • Subject to 106 agreement with Wychavon District Council
  • Planning application: W/24/02443/FUL
  • Lounge overlooking rear garden and kitchen to the front
  • Master bedroom with en-suite, family bathroom and ground floor w.c.
  • Drive with parking
  • Peaceful village location on the outskirts of Pershore
  • Disclosure: Nigel Poole has a financial interest in the sale of this building plot

floorplan

Sorry! An EPC is not available for this property.

Hollyblue Close, Drakes Brough...

£106,000

2 Bedroom Semi-Detached House

More details...

Rushers Close, Pershore

£90,000

2 Bedroom Retirement Property

More details...

Rushers Close, Pershore

£90,000

2 Bedroom Retirement Property

More details...

Rushers Close, Pershore

£140,000

2 Bedroom Terraced Bungalow

More details...

Meadow Walk, Pershore

£190,000

3 Bedroom Terraced House

More details...

Defford Road, Pershore

£200,000

1 Bedroom Ground Flat

More details...

Ref: 00004302

Nigel Poole & Partners

23 High Street
Pershore
Worcestershire
WR10 1AA
United Kingdom

T: 01386 556506
E: tania.port@nigelpooleestateagents.co.uk

Update Cookies Preferences